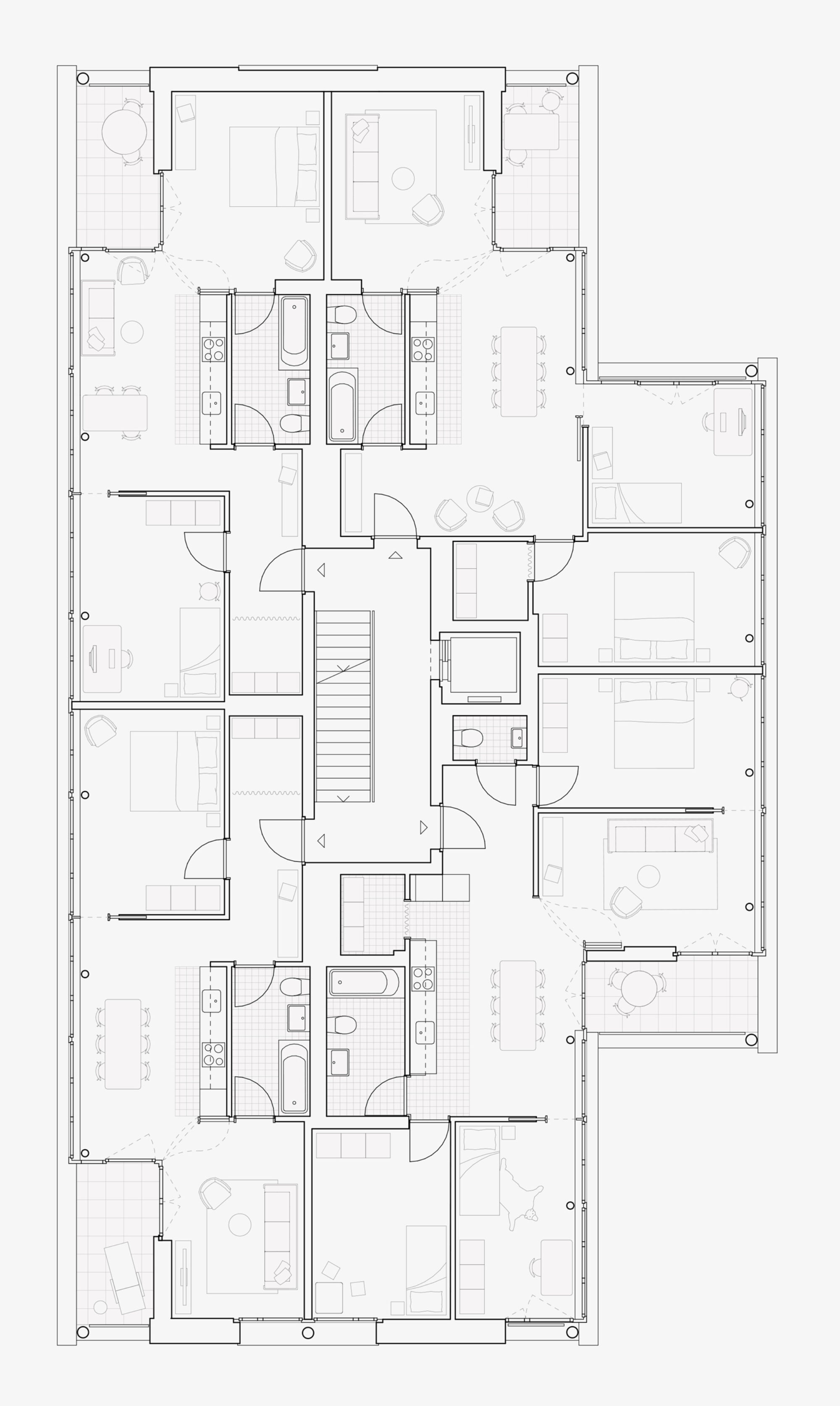
Rund um die Flurstrasse wird Altstetten richtiggehend umgepflügt: der Gewerbestandort wird zum Stadtviertel mit Mischnutzung umgebaut und dabei auch noch kräftig verdichtet. Das bestehende, beziehungslose Nebeneinander von sperrigen Gewerbebauten mit formlosen Zwischenräumen gerät damit unter Druck, denn Wohnquartiere haben andere Ansprüche an die Lesbarkeit des öffentlichen Raums, an verständliche, identitätsstiftende Strassen, Plätze und Höfe. Das neue PWG-Wohnhaus ist viel zu klein, um eine solche Entwicklung zu prägen – es muss sie aber unterstützen. Das kann es, indem es die Strassenflucht auf möglichst grosser Länge verbindlich fasst. Deshalb wird die ganze verfügbare Länge bis zur Parzellengrenze beansprucht. Je länger das Haus wird und je höher, desto schmaler kann es bleiben und desto grösser wird der Abstand zum bestehenden Nachbargebäude an der Hädrichstrasse. Darüber werden sich die Mieter auf beiden Seien ebenso freuen wie die ausladenden Bäume, die hier wachsen sollen! Je dichter die Stadt wird, desto wichtiger ist es, das Erdgeschoss dem Stadtraum zuzuwenden, statt es abzuschotten und dahinter die üblichen „Garten-Wohnungen“ zu kaschieren. Deshalb bezeichnet hier eine Kolonnade gestisch die Öffnung zum Stadtraum.

Mit dem spröden Gewerbehaus gegenüber kann man durchaus Freundschaft schliessen. Gern übernehmen wir das Bandfenstermotiv aus dem Bestand, welches vielfältige Raumdispositionen erlaubt. Weil die Wohnräume nicht tief sind, sondern längs zur Fassade gelegt sind, kann das Bandfenster auf der Hofseite schmal bleiben, also eine hohe Brüstung und einen tiefen Sturz haben. Stirn- und Längsseiten werden bewusst unterschieden: körperhaft und stämmig die exponierte Stirn, tektonisch und fragil die Längsseiten. Loggien an den Gebäudeecken vermitteln zwischen den beiden so verschieden artikulierten Fassaden.

163

Adresse: Flurstrasse 115, 8047 Zürich
Programm: 21 Wohnungen
Bauherrschaft: Stiftung PWG
Auftragsart: 1. Preis im Projektwettbewerb 2020, Generalplanung, Planung und Ausführung 2020-2025, bis Ausführungsplanung unter Esch Sintzel Architekten

Projektleitung: Marie-Kristin Lutz
Projektteam: Jillin Ettlin, Anabell Fritsches, Tizian Gasser, Witold Kabirov, Jeran Rüeger, Sidonia Wiesmann

Fachplanung und Beratung
Baumanagement: Meier + Steinauer Partner
Landschaftsarchitektur: Kolb Landschaftsarchitektur
Statik: DSP Ingenieure + Planer
Brandschutz: Cribs
Bauphysik, Nachhaltigkeit: Durable Planung und Beratung
Haustechnik, Sanitär: Böni Gebäudetechnik
Elektro: Mettler + Partner
Farbe: Andrea Burkhard

Fotografien: Paola Corsini

Referenz: Weissenhofsiedlung, Stuttgart, Le Corbusier und Pierre Jeanneret, 1927