Die Siedlungen Birkenhof, Erismanhof, Bullingerhof – eindrücklich ist das Werk von Kündig und Oetiker, es steht für sich und repräsentiert die Pionierphase des genossenschaftlichen Wohnungsbaus in Zürich. Die Bauten strahlen eine Schwere aus, die bereits Bruno Taut kritisierte. Er nannte sie ‚Proletarierschlösser mit Kurfürstenbauornamentik‘. Ihr Ausdruck erinnert an italienische Palazzi der Renaissance; ein Sockel mit rustikalem Bossenwerk, verhältnismässig kleine Fensteröffnungen, teils mit Rundbögen, und ein markantes Dachgesimse. Eine Schwere, die an die Ewigkeit anknüpfen möchte.

Wie soll man sich heute in unmittelbarer Nähe solcher Baudenkmäler verhalten, wenn sich die Ansprüche an ein Haus diamentral zur damaligen Zeit verhalten? Das Haus soll wandelbar sein und an veschiedenste Bedürfnisse angepasst werden können, schnelllebig und interaktiv, im aufstrebenden, coolen Zürrich-West für die Generation Y. Unsere Antwort darauf: Eine gewisse Leichtigkeit, viel Transparenz und eine moderne Atmosphäre. Auf keinen Fall soll das neue Haus anbiedernd sein, sondern durch sein Anders-Sein in eine respektvolle Distanz treten.

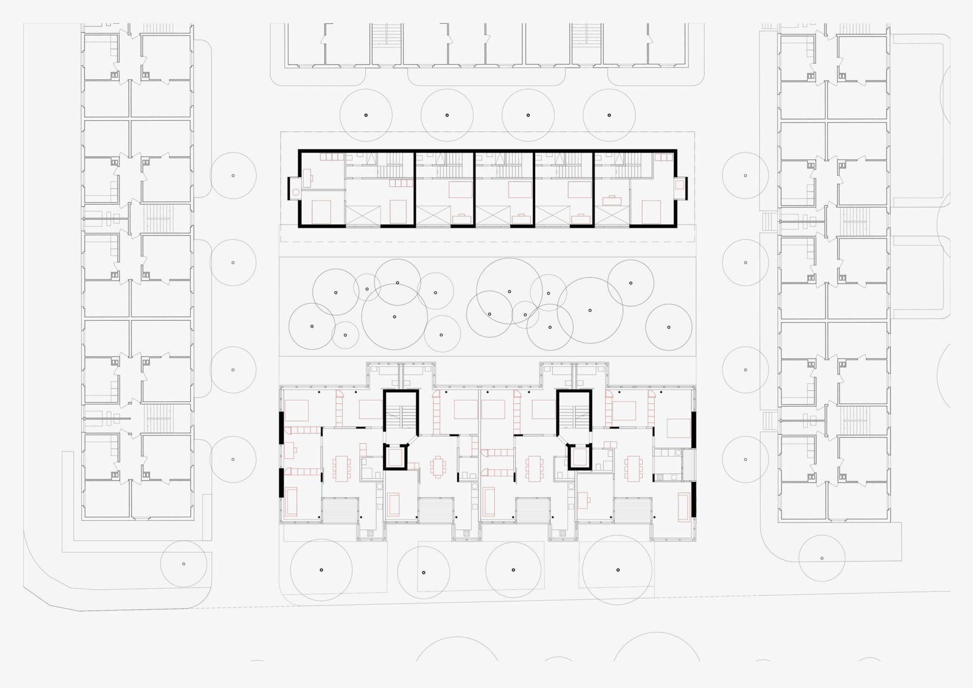
Durch den Neubau verliert die städtebauliche Geste der u-förmigen Bebauung an Bedeutung. Neu wird die grosse Geste des genossenschaftlichen Hofs in überschaubare Teilbereiche gegliedert. Es entsteht eine Abfolge von Aussenräumen, die sich in die Tiefe der Bebauung entwickeln. In dieser können wir uns durchaus auch ein Hofgebäude vorstellen. Die Räume werden klarer einer Funktion gewidmet, wie dies in jeder dichten Stadt geschieht. Hier der Strassenraum, der eine zusätzliche Belebung durch die Ateliers erlebt. Dort der Hof mit einem dichten Baumteppich, als Mittelgrund und willkommener Filter zwischen den Wohnungen. Inmitten der Bäume das Hofhaus mit kleinen Duplexwohnungen und einem geschlossenen Rücken, konzipiert in Anlehnung an die Hofhäuser von Diener und Diener an der Hammerstrasse in Basel.

202

Adresse: Eichbühlstrasse / Hardstrasse, 8004 Zürich
Programm: 31 Wohnungen
Bauherrschaft: Musikvertrieb AG, Zürich
Auftragsart: Studienauftrag
Energiestandard: Standard Nachhaltiges Bauen Schweiz (SNBS) Gold

Projektteam: Korbinian Bromme, Sidonia Wiesmann, Laurent Burnand, Lotta Theuerkauf, Cornelia Fischer, Stephan Sintzel

Fachplanung und Beratung
Landschaftsarchitektur: Kolb Landschaftsarchitektur GmbH, Zürich
Statik: Freihofer & Partner AG, Zürich