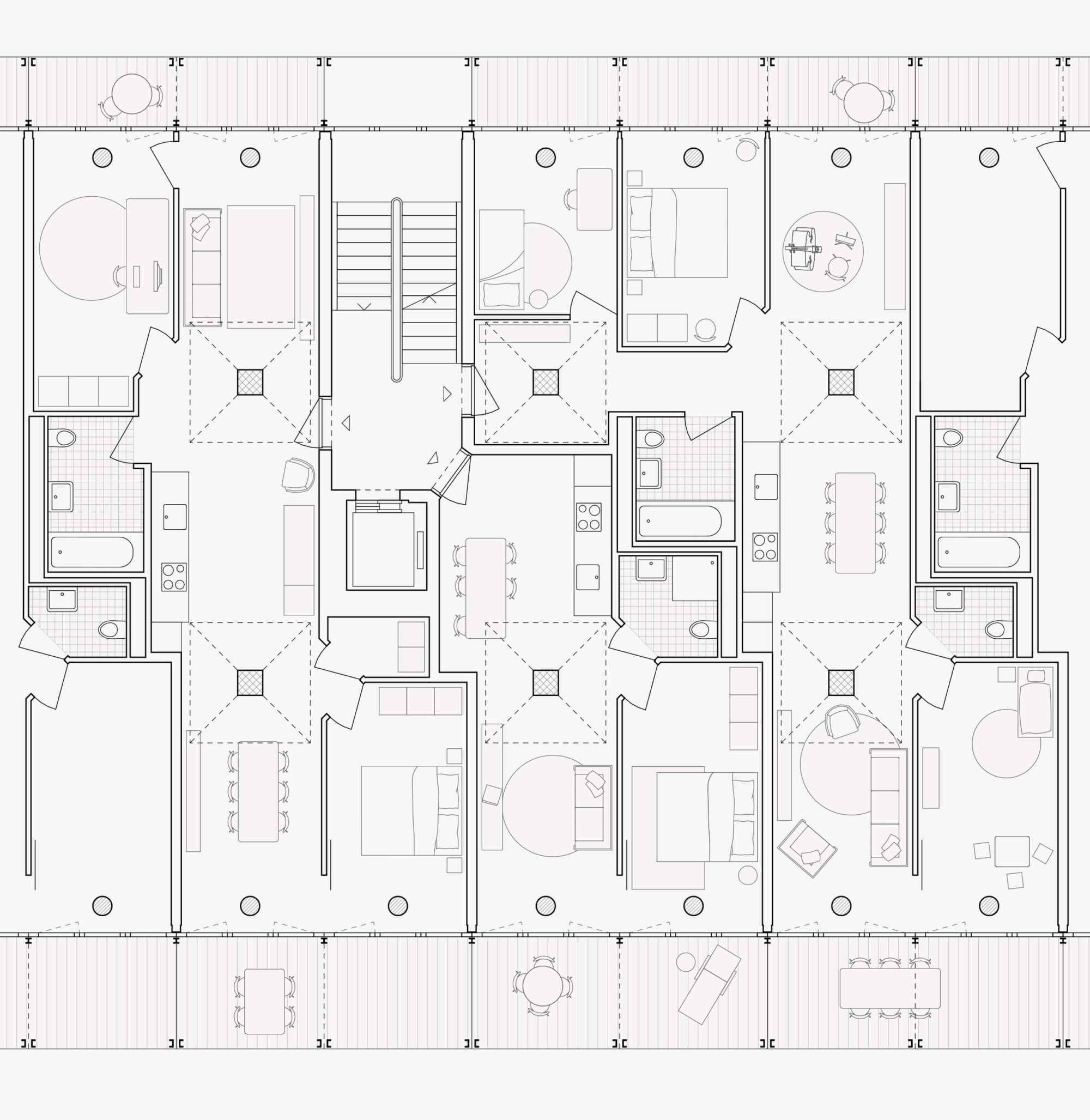
Die mächtigen Pilzstützen des ehemaligen Weinlagers sind die prägnantesten Elemente des Bestandes und bilden den Ausgangspunkt des Entwurfs. Um ihre Wirkung trotz der Kleinteiligkeit der neuen Wohnnutzung erlebbar zu behalten, werden sie in verschiedener Weise freigespielt und in Szene gesetzt: In den quer zur Gebäuderichtung liegenden Wohnungen ist ihre sperrige Monumentalität an sich ein Erlebnis – in der Sequenz sind sie in den beiden ‚Rues intérieures’ (inneren Strassen), die das Haus in Längsrichtung durchziehen, spürbar.

So bilden die Stützen auch den Ausgangspunkt für die innere Organisation des Hauses: Der eigentliche Städtebau ist zwar durch den Bestand gesetzt – doch entsteht entlang der inneren Strassen gewissermassen eine Stadt im Haus. Sie erschliessen nicht nur die Treppenhäuser und die gemeinschaftlichen Waschküchen – sie ermöglichen vor allem auch eine Vielfalt an Wohnungstypologien für alle Generationen und Lebensformen. Im Hochparterre öffnet sich die innere Strasse in die Eingangshallen und vernetzt über Treppen und Rampen die häusliche Sphäre mit der städtischen – an den viel mehr zur Stadt adressierten Gebäudeköpfen liegen die Gewerberäume und das Café. Seinen oberen Abschluss findet das Wegenetz im Gemeinschaftsraum und der kollektiven Dachterrasse.

144

Adresse: Weinlagerstrasse 11, 4056 Basel
Programm: Umnutzung Lagergebäude zu 64 Wohnungen, Café-Bar, Gewerberaum, Joker- und Gästezimmer, Gemeinschaftsraum, Dachterrasse, Musik-Proberäume, Velo-Parking, Einstellhalle
Bauherrschaft: Stiftung Habitat
Auftragsart: 1. Preis im Studienauftrag 2018, Generalplanung in Arbeitsgemeinschaft mit Proplaning, Planung und Ausführung 2018-2023, vollendet unter Esch Sintzel Architekten
Energiestandard: Minergie-P-Eco

Projektleitung: Laurent Burnand, Seraina Spycher, Laura Zgraggen
Projektteam: Nahuel Barroso, Tizian Gasser, Andreas Hasler, Luca Helbling, Steffen Jürgensen, Witold Kabirov, Rebecca Konnertz, Xijie Ma, Nadja Moser, Eva-Maria Nufer, Johannes Senn, Marco Rickenbacher (verantwortlicher Partner)

Fachplanung und Beratung
Baumanagement: Proplaning
Landschaftsarchitektur: Stauffer Roesch
Statik: Aerni + Aerni Ingenieure, Aegerter & Bosshardt
Brandschutz: Aegerter & Bosshardt
Bauphysik, Akustik: Gartenmann Engineering
Haustechnik: Bogenschütz
Sanitär: Technik im Bau
Elektro: Edeco
Licht: TT Licht
Fassadenplanung: Christoph Etter
Signaletik: Büro Berrel Gschwind
Farbe: Andrea Burkhard

Fotografien: Paola Corsini, Philip Heckhausen